Chung cư Petrowaco Tower
Email : sotaychungcu@gmail.com
Hotline : 0964633626
Chi tiết dự án
Nhận ký gửi Bán & cho thuê Chung cư Petrowaco Tower
Hotline: 0914.788.345
**********

• Tên dự án: Đầu tư xây dựng lại Khu tập thể số 97 - 99 Láng Hạ
• Tên thương mại: Petrowaco Tower
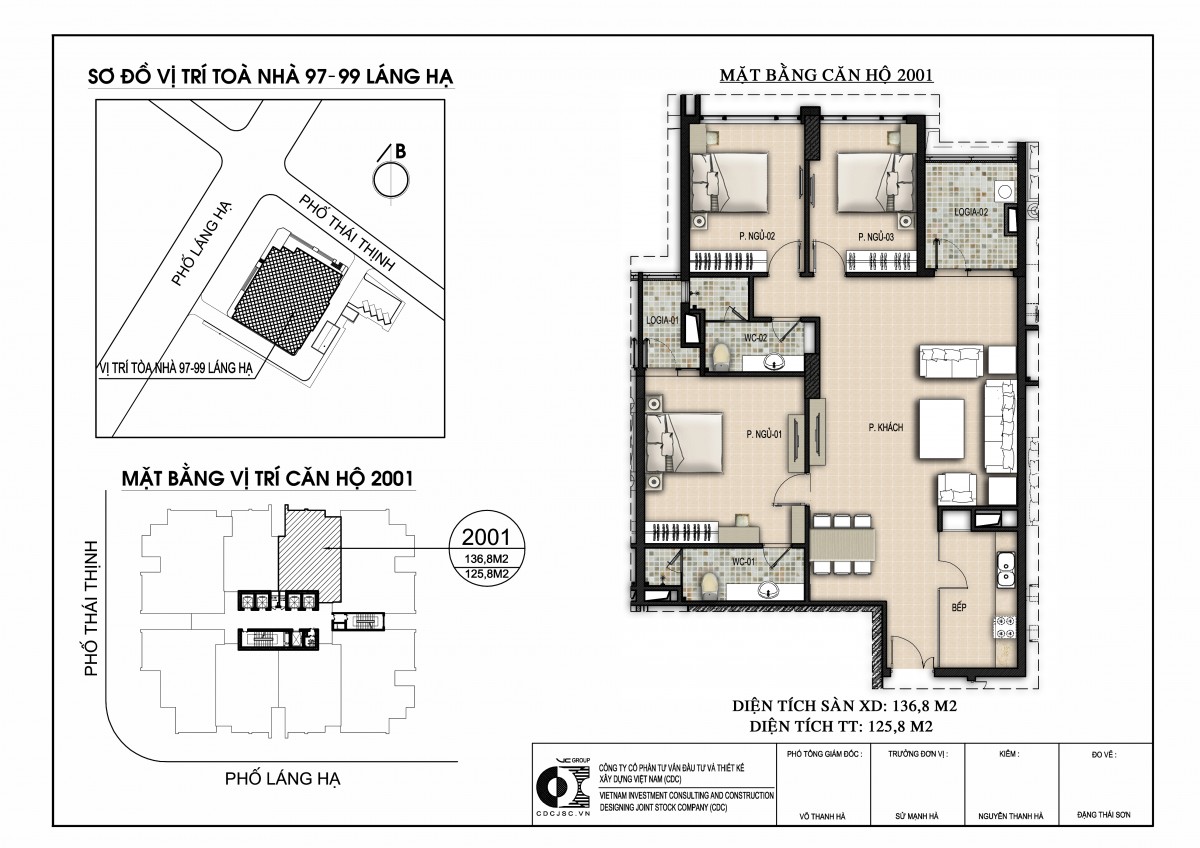
• Vị trí: Số 97 - 99 Láng Hạ, Phường Láng Hạ, Quận Đống Đa, TP Hà Nội
• Chủ Đầu tư: Công ty Cổ phần Bất động sản Dầu khí (Petrowaco)
• Hợp tác đầu tư: Tổng Công ty Cổ phần Xuất nhập khẩu & Xây dựng Việt Nam - Vinaconex
• Tư vấn giám sát: Công ty Cổ phần TEXO Tư vấn và Đầu tư
• Tư vấn thiết kế: Công ty CP tư vấn đầu tư và thiết kế xây dựng VN (CDC)
• Nhà thầu thi công: Tổng Công ty Cổ phần Xuất nhập khẩu & Xây dựng Việt Nam - Vinaconex
• Diện tích xây dựng: 1.480 m2
• Tổng diện tích sàn: 40.675 m2
• Diện tích sàn văn phòng và dịch vụ: 10.970 m2
• Diện tích sàn nhà ở: 29.705 m2
• Diện tích sàn tầng hầm: 9.882 m2
• Quy mô dự án: 27 tầng nổi, 03 tầng hầm
• Tổng mức đầu tư dự kiến (trước VAT): 603,8 tỷ đồng
• Hình thức sở hữu: Sổ hồng vĩnh viễn

• Dự án Petrowaco 97 – 99 Láng Hạ tọa lạc tại số 97 - 99 Láng Hạ, quận Đống Đa, TP Hà Nội, nằm tại ngã ba giao cắt giữa đường Láng Láng Hạ và đường Thái Thịnh. Toà nhà được thiết kế theo phong cách hiện đại với những đường nét kiến trúc độc đáo, hài hoà không gian và là tổ hợp căn hộ cao cấp và văn phòng.

• Với vị trí chỉ mặt đường Láng Hạ, tuyến đường này nối kết liên thông với khu trung tâm của thành phố, đồng thời cũng là trục đường chính của quận Đống Đa, nên địa điểm khu đất xây dựng sẽ rất thuận tiện về các tuyến giao thông tiếp cận đối nội lẫn đối ngoại.

• Sở hữu căn hộ chung cư Petrowaco 97 – 99 Láng Hạ, Đống Đa, Hà Nội đồng nghĩa với việc sở hữu hàng loạt tiện ích hàng đầu, một không gian sống cao cấp hiện đại, có đầy đủ tiện ích nội khu, ngoại khu làm thỏa mãn người mua nhà. Xung quanh dự án là tập hợp chuỗi các văn phòng, tòa cao ốc, khu biệt thự, liền kề nhà mặt phố của các dự án lớn đã đi vào hoạt động được nhiều năm, mang tới cho dự án những giá trị không thể so sánh được.

• Petrowaco Tower được quy hoạch sau khi hạ tầng khu vực xung quanh đã phát triển và đi vào hoạt động ổn định. Chính vì thế khu chung cư cao cấp này được thừa hưởng rất nhiều tiện ích như hệ thống trường học, hệ thống y tế đầy đủ với các bệnh viện lớn, các trung tâm thương mại, khu vui chơi giải trí, không gian xanh,… Ngoài tiện ích ngoại khu thì tiện ích nội khu vô cùng đáng nói như: khu ẩm thực cổ truyền và quốc tế, khu spa chăm sóc sức khỏe, phòng tập gym hiện đại, bể bơi bốn mùa,…

• Nhờ vào lợi thế nằm trong khu dân cư sầm uất, Chung cư Petrowaco Tower được thừa hưởng trọn vẹn các tiện ích khu vực gồm hạ tầng giao thông thông suốt, hạ tầng cơ sở đồng bộ với đầy đủ trường học, bệnh viện, trung tâm thương mại, siêu thị, công viên, khu vui chơi giải trí…

• Chung cư 97 - 99 Láng Hạ được thiết kế căn hộ dựa trên tính toán khoa học, đảm bảo không gian sống thoáng đạt, thuận tiện cho sinh hoạt. Gần 70% diện tích dành cho cây xanh, đài phun nước, khu vui chơi giải trí chung tạo nên một môi trường sống lý tưởng.

• Tại Dự án Petrowaco Láng Hạ chủ đầu tư rất chú trọng đến hệ thống chăm sóc sức khỏe cho cư dân của mình thông qua các hạng mục đầu tư: tiện ích đa dạng, phong phú với khu nhà trẻ, phòng tập gym, siêu thị,… sẽ mang lại một cuộc sống tiện nghi cho khách hàng.

• Với những thiết kế hiện đại, áp dụng các tiêu chuẩn kiểu mẫu cho những căn hộ tại Chung cư Petrowaco 97 - 99 Láng Hạ người mua nhà có thể hoàn toàn yên tâm về không gian sống, việc vận dụng các yếu tố phong thuỷ vào trong từng thiết kế với chủ đạo các căn hộ đều lấy cảm hừng “Chạm tay vào Nắng và Gió” kết hợp tinh tế với thiên nhiên, mang thiên nhiên vào từng căn hộ nhưng vẫn giữ được sự sang trọng và đẳng cấp.
• Với phương châm kiến tạo nên một “không gian sống lý tưởng” cho mỗi cư dân, Chủ đầu tư đã lựa chọn nhà thầu xây dựng là nhà thầu uy tín nhất trên thị trường bất động sản hiện nay để thi công dự án, đồng thời cùng với nhà thầu tư vấn giám sát rất khắt khe trong công tác giám sát, kiểm định chất lượng thi công Dự án Petrowaco Tower. Do đó, khi trực tiếp tham quan dự án, khách hàng có thể cảm nhận được sự chỉnh chu trong từng đường phào chỉ, điện, nước hay chất lượng bê tông, sơn bả,…

• Đúng như chia sẻ của chủ đầu tư, khu căn hộ Petrowaco Tower được thiết kế rất thông minh, giúp tối ưu hóa diện tích cũng như công năng sử dụng của mỗi phòng. Hệ thống logia, vách kính, cửa sổ được bố trí một cách khoa học giúp cả căn hộ luôn thông thoáng, ngập tràn ánh sáng và gần gũi với thiên nhiên.





• Các căn hộ tại Petrowaco Tower đây được chăm chút tới từng chi tiết, trang bị full nội thất cao cấp như khóa cửa thông minh, cửa chống cháy Lecmax, hệ thống điều hòa Multi Mitshubishi, thiết bị vệ sinh Kohler... Các căn hộ có tầm nhìn thoáng đãng, nơi cư dân có thể ngắm trọn vẹn cảnh sắc xanh mát của công viên, hồ điều hòa cũng như thành phố lung linh khi đêm về.
LIÊN HỆ TƯ VẤN VÀ ĐẶT LỊCH XEM DỰ ÁN
HOTLINE: 0914.788.345
***********
TIN TỨC MỚI CẬP NHẬT
DỰ ÁN NỔI BẬT
Dự án cùng khu vực
Chat Zalo