Chung cư N03-T1 Ngoại Giao Đoàn
Email : sotaychungcu@gmail.com
Hotline : 0964633626
Chi tiết dự án
Nhận ký gửi Bán & cho thuê Chung cư N03-T1 Ngoại Giao Đoàn
Hotline: 0914.788.345
**********

• Tên dự án: Chung cư N03-T1 Ngoại Giao Đoàn
• Vị trí dự án: Lô N03-T1 - Khu Ngoại Giao Đoàn, P. Xuân Tảo, Q. Nam Từ Liêm, TP Hà Nội
• Chủ đầu tư: Công ty Cổ phần thi Công cơ giới xây lắp
• Đơn vị thi công: Công ty Cổ phần thi công cơ giới xây lắp
• Đơn vị thiết kế: Công ty Cổ phần Tư vấn đầu tư xây dựng phát triển đô thị Hà Nội (HACID)
• Đơn vị thẩm tra: Công ty Tư vấn Đại học Xây Dựng
• Tư vấn giám sát: Công ty CP tư vấn - thiết kế - xây dựng kinh doanh nhà
• Quy mô dự án :25 tầng nổi + 2 tầng hầm
• Diện tích khu đất: 3.743m2
• Diện tích xây dựng: 1.252m2
• Diện tích sàn xây dựng: 32.050m2
• Diện tích sàn tầng hầm: 6.482m2
• Diện tích căn hộ/tầng: 1.002m2
• Mật độ xây dựng: 35%
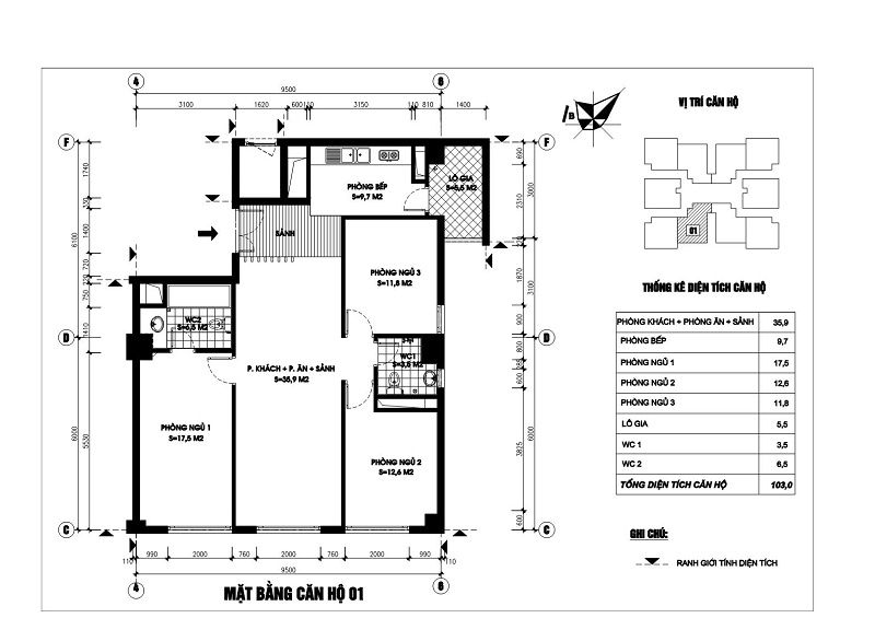
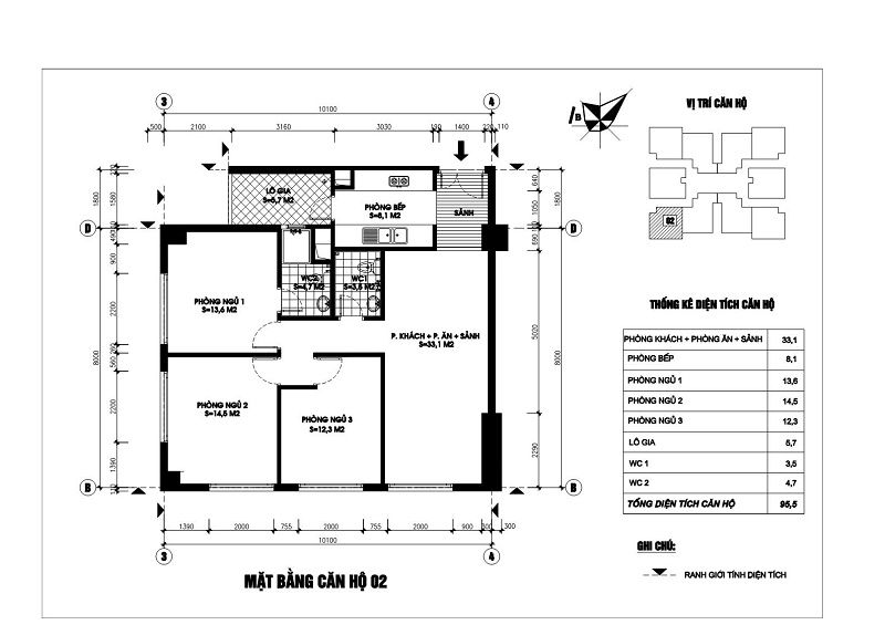
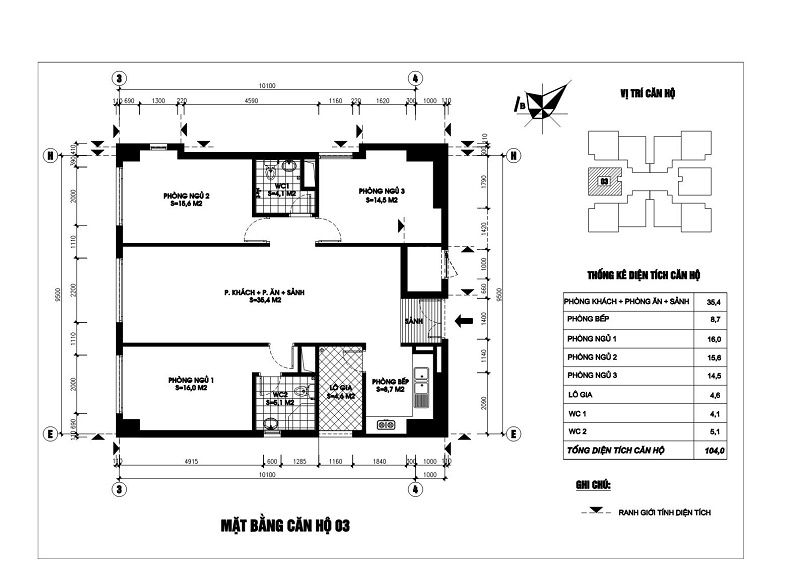
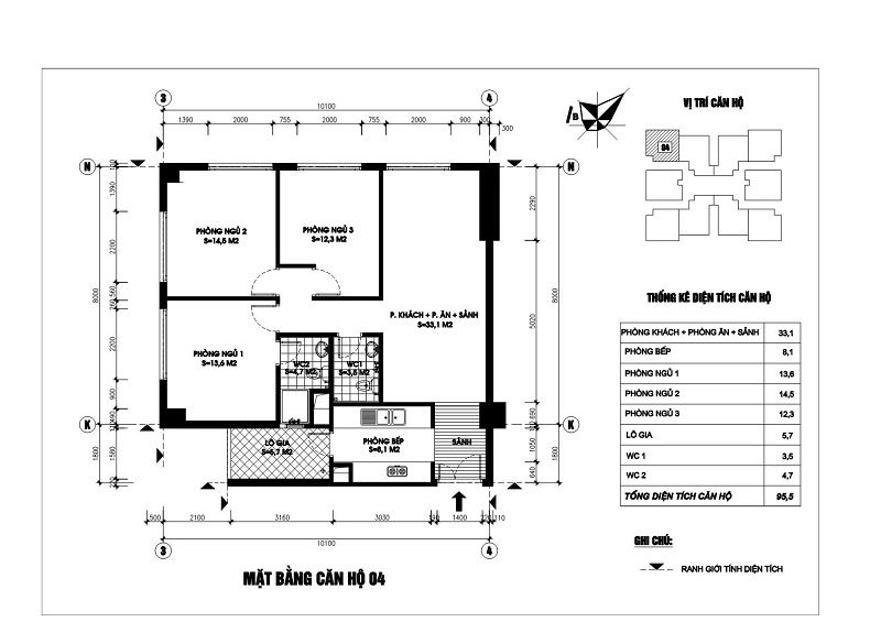
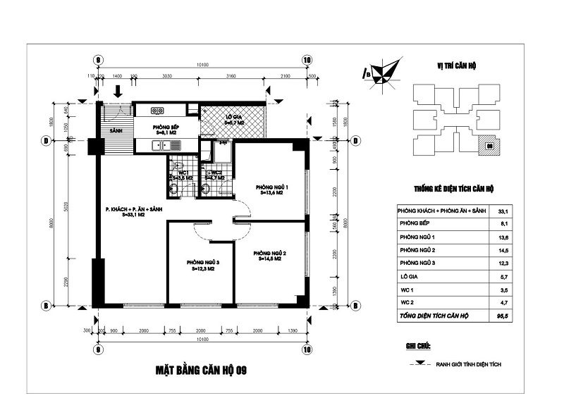
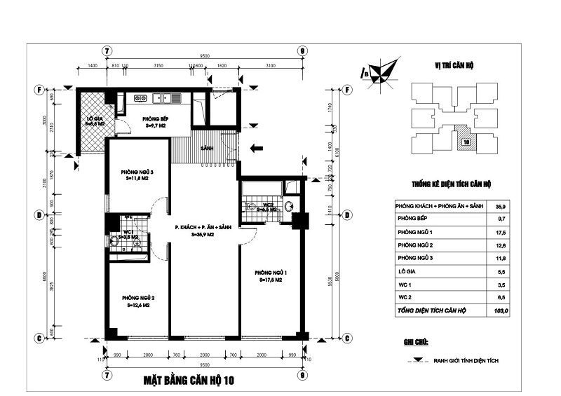
• Bố trí căn hộ: 10 căn/tầng
• Hình thức sở hữu: sổ hồng vĩnh viễn

• Tòa nhà N03T1 nằm ở trung tâm dự án Ngoại Giao Đoàn, trên trục đường Nguyễn Văn Huyên kéo dài.
- Phía Tây giáp với Hồ công viên Đại sứ quán.
- Phía Bắc giáp tòa nhà N02T3 và hướng sông Hồng cầu Nhật Tân.
- Phía Đông giáp tòa N03T2 và hướng Hồ Tây.
- Phía Nam giáp tòa N03T3 và hướng khu đô thị Tây Hồ Tây.

• Không gian sống lý tưởng ở Chung cư N03-T1 Ngoại Giao Đoàn không chỉ thể hiện ở thiết kế hiện đại, sang trọng mà còn thể hiện ở tâm ý của chủ đầu tư, đứng trên phương diện của cư dân sống trong khu đô thị mà đưa vào những tiện ích hấp dẫn: hồ bơi, công viên- sân chơi cho các bé, nhà trẻ, trường học, khu mua sắm ... Hãy cùng chúng tôi trải nghiệm một " cuộc sống như mơ" và cùng tạo lập " những giá trị thịnh vượng" ngay từ hôm nay.

• Chung cư N03-T1 mang phong cách hiện đại, tạo không gian sống thoải mái cho các gia đình. Căn hộ đề thiết kế để đảm bảo tối đa việc chiếu sáng và thông gió tự nhiên, không gian sinh hoạt chung như phòng khách, phòng ăn.. được thiết kế dạng không gian mở tạo sự rộng rãi, thông thoáng và tiện lợi trong sử dụng

• Khác biệt với những khu căn hộ khác, Chung cư N03-T1 Ngoại Giao Đoàn mang đậm một màu sắc tươi xanh hoàn toàn mới mẻ từ một rừng tiện ích ngay tại nội khu dưới chân tòa nhà như khu bể bơi ngoài trời, sảnh cafe, khu vườn thư giãn dành cho người lớn tuổi, khu vui chơi cầu trượt dành cho trẻ nhỏ, trường học ...

• Với phương châm đem đến cho khách hàng một cuộc sống thoải mái và tiện nghi, các nhà làm Dự án N03-T1 Ngoại Giao Đoàn không những chú trọng đặc biệt đến thiết kế các căn hộ cho phù hợp với phong thủy mà còn đem đến cho các khách hàng của mình một cuộc sống đầy đủ ngay chính tại nơi đây mà không phải đi bất cứ đâu như: mua sắm, giải trí, chăm sóc sức khỏe, làm đẹp, tập luyện thể thao... Các tiện ích ngay tại dự án giúp bạn tiết kiệm nhiều thời gian, công sức và tiền bạc sẽ nâng tầm cuộc sống cho bạn.

• Toàn bộ căn hộ tại Chung cư N03-T1 Ngoại Giao Đoàn được thiết kế với thiết kế ưu việt để đáp ứng toàn bộ nhu cầu nghỉ ngơi tươi mát của khách hàng, đảm báo đưa đến 100% lượng không khí tươi ráo vào trong từng căn hộ của bạn. Đặc biệt hơn nữa là cách bố trí hệ thống bế sát với lô gia để tạo ra sự thông thoáng cho bếp và căn hộ của gia chủ.

• Tại Chung cư N03-T1, cư dân sẽ được hưởng một cuộc sống tiện nghi và thuận tiện với hệ thống an toàn, hệ thống thang máy chở người và hàng hóa riêng biệt nhằm đảm bảo lưu lượng di chuyển của cư dân vào giờ cao điểm, hệ thống an ninh đồng bộ, camera giám sát 24/24, máy phát điện dự phòng khởi động sau 15 giây khi xảy ra sự cố, tầng hầm để xe rộng rãi đáp ứng nhu cầu đi lại của cho cư dân

• Với những thiết kế hiện đại, áp dụng các tiêu chuẩn kiểu mẫu cho những căn hộ tại Chung cư N03-T1 Ngoại Giao Đoàn người mua nhà có thể hoàn toàn yên tâm về không gian sống, việc vận dụng các yếu tố phong thuỷ vào trong từng thiết kế với chủ đạo các căn hộ đều lấy cảm hừng “Chạm tay vào Nắng và Gió” kết hợp tinh tế với thiên nhiên, mang thiên nhiên vào từng căn hộ nhưng vẫn giữ được sự sang trọng và đẳng cấp.
• Với thông điệp muốn truyền tải “Nơi ươm mầm cho khát vọng thành công”, do đó, chủ đầu tư đã có những tính toán khoa học và hợp lý về thiết kế, tiện ích đều hướng tới mục đích làm khơi gợi cảm hướng sống, sáng tạo mỗi ngày. Các căn hộ N03-T1 Ngoại Giao Đoàn cũng được chú trọng về phong thủy, với thiết kế các căn hộ từ 2-3 phòng ngủ và tối đa các phòng đều có ánh sáng tự nhiên tạo nên không gian thoáng mát và tràn đầy sinh khí, tạo nền tảng cho cuộc sống thịnh vượng của cư dân.

• Tại N03-T1 Ngoại Giao Đoàn, với thiết kế căn hộ thông minh, từng mét vuông đều được tính toán tỉ mỉ, chi tiết và bài trí khoa học nhằm gia tăng diện tích sử dụng. Mỗi căn hộ đều có cửa sổ và logia thoáng, rộng, tận dụng tối đa ánh sáng, nắng và gió tự nhiên.










• Chung cư N03-T1 Ngoại Giao Đoàn là dự án có thiết kế rất nổi trội, không những mang vẻ đẹp sang trọng, trang nhã, hiện đại từ phối cảnh căn hộ, quang cảnh khuôn viên xung quanh mà còn tối đa hóa toàn bộ công năng sử dụng từ tầng hầm gửi xe, khối đế tiện ích, căn hộ sử dụng.
LIÊN HỆ TƯ VẤN & XEM ĐẶT LỊCH DỰ ÁN
HOTLINE: 0914.788.345
***********
TIN TỨC MỚI CẬP NHẬT
DỰ ÁN NỔI BẬT
Dự án cùng khu vực
Chat Zalo