Chung cư CT5 - CT6 Thịnh Liệt
Email : sotaychungcu@gmail.com
Hotline : 0964633626
Chi tiết dự án
Thông tin chỉ mang tính chất tham khảo, hiện tại chưa có thông tin chính thức từ CĐT
QUÝ KHÁCH CÓ NHU CẦU XIN VUI LÒNG ĐỂ LẠI THÔNG TIN

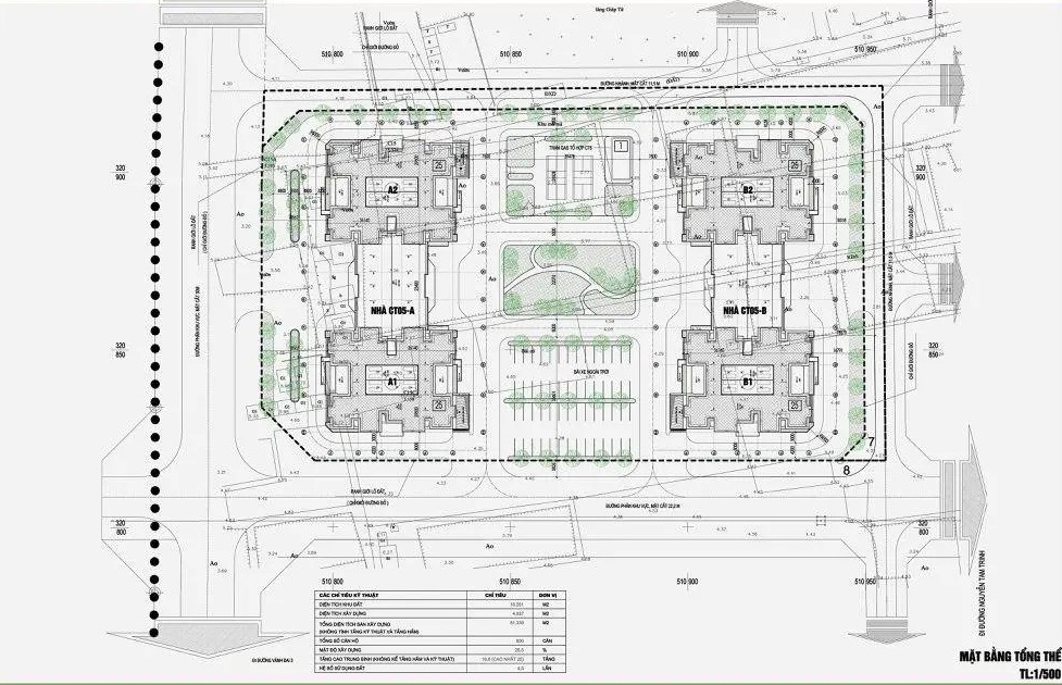
• Tên dự án: Tổ hợp Nhà ở xã hội CT5 - CT6 Khu ĐTM Thịnh Liệt
• Địa điểm: Khu ĐTM Thịnh Liệt, P.Thịnh Liệt, Q.Hoàng Mai, TP Hà Nội
• Chủ đầu tư: Tổng công ty xây dựng và phát triển hạ tầng
• Tư vấn thiết kế: Công ty Cổ phần Tư vấn Licogi
• Tổng diện tích đất: 27.300m2
• Tổng diện tích sàn xây dựng: 113.297m2
• Quy mô: 23 - 25 tầng
• Tổng số căn hộ: 1150 căn
- Nhà ở xã hội bán: 690 căn
- Nhà ở xã hội cho thuê: 230 căn
- Nhà ở để kinh doanh thương mại: 230 căn
• Tổng mức đầu tư: 1.174 tỷ đồng
• Hình thức sở hữu: Sổ hồng vĩnh viễn

• Nhà ở xã hội CT5 - CT6 Thịnh Liệt nằm tại khu vực trung tâm quận Hoàng Mai. Đây là vị trí thuận lợi kết nối giao thông vào trung tâm Thủ đô hoặc di chuyển đến nhiều nơi của Thành phố thông qua các tuyến đường vành đai trên cao. Tương lai nơi đây cũng sẽ là xuất phát điểm của các tuyến tàu điện di chuyển vào nội đô.

• Từ Chung cư CT5 - CT6 Thịnh Liệt chỉ mất 5 phút để lên trung tâm 36 phố phường, với hồ Gươm trái tim thủ đô, cũng không quá 5 phút để đến các Đại học nổi tiếng như Bách Khoa, Xây dựng, Kinh tế…và cũng chỉ chưa mất đến 10 phút để đến các trung tâm y tế lớn như bệnh viện Bạch Mai, Thanh Nhàn, viện Đại Học Y Hà Nội hay cao cấp hơn là Vincom Vinmec.

• Về dịch vụ giải trí, xung quanh Dự án CT5 - CT6 Thịnh Liệt với khoảng cách gần có trung tâm thương mại Time City, Công viên Yên Sở, Công viên Thống Nhất. Xa hơn Có Aone Mall, EcoPack city nhưng cũng chỉ mất hơn 10 phút qua hai cây cầu Vĩnh Tuy và Thanh Trì là tới nơi. Nhà ở xã hội Thịnh Liệt cách cầu Thanh Trì khoảng 1km, cách cầu Vĩnh Tuy 2 km về phía Đông Bắc và cách hồ Yên Sở 1km về phía Tây Nam, nằm cách không xa trung tâm Hà Nội (khoảng 6km), có lợi thế về giao thông, hạ tầng cơ sở và không gian sống đẹp, gần sông Hồng và công viên Yên Sở trong quy hoạch sẽ là công viên hiện đại và rộng vào bậc nhất Hà Nội.

• Tổ hợp CT5 - CT6 Thịnh Liệt với nhiều khu tiện ích phục vụ cư dân tại khu nhà như thư viện, siêu thị, trung tâm thương mại,khu vực dành cho văn phòng. Điểm đặc biệt là Dự án Nhà ở xã hội Thịnh Liệt - Hoàng Mai chú trọng đến phát triển không gian vui chơi giải trí gần gũi với thiên nhiên như: các khuôn viên cây xanh, vườn hoa, sân chơi danh cho trẻ và không gian dành cho người cao tuổi.

• Với phương châm đem đến cho khách hàng một cuộc sống thoải mái và tiện nghi, các nhà làm Dự án Nhà ở xã hội CT5 - CT6 KĐT Thịnh Liệt không những chú trọng đặc biệt đến thiết kế các căn hộ cho phù hợp với phong thủy mà còn đem đến cho các khách hàng của mình một cuộc sống đầy đủ ngay chính tại nơi đây mà không phải đi bất cứ đâu như: mua sắm, giải trí, chăm sóc sức khỏe, làm đẹp, tập luyện thể thao... Các tiện ích ngay tại dự án giúp bạn tiết kiệm nhiều thời gian, công sức và tiền bạc sẽ nâng tầm cuộc sống cho bạn.

• Toàn bộ căn hộ tại Chung cư CT5 - CT6 Thịnh Liệt được thiết kế với thiết kế ưu việt để đáp ứng toàn bộ nhu cầu nghỉ ngơi tươi mát của khách hàng, đảm báo đưa đến 100% lượng không khí tươi váo vào trong từng căn hộ của bạn. Đặc biệt hơn nữa là cách bố trí hệ thống bế sát với lô gia để tạo ra sự thông thoáng cho bếp và căn hộ của gia chủ.

• Tại Nhà ở xã hội CT5 - CT6 Thịnh Liệt - Hoàng Mai, cư dân sẽ được hưởng một cuộc sống tiện nghi và thuận tiện với hệ thống an toàn, hệ thống thang máy chở người và hàng hóa riêng biệt nhằm đảm bảo lưu lượng di chuyển của cư dân vào giờ cao điểm, hệ thống an ninh đồng bộ, camera giám sát 24/24, máy phát điện dự phòng khởi động sau 15 giây khi xảy ra sự cố, tầng hầm để xe rộng rãi đáp ứng nhu cầu đi lại của cho cư dân

• Với những thiết kế hiện đại, áp dụng các tiêu chuẩn kiểu mẫu cho những căn hộ tại Chung cư CT5 - CT6 Thịnh Liệt người mua nhà có thể hoàn toàn yên tâm về không gian sống, việc vận dụng các yếu tố phong thuỷ vào trong từng thiết kế với chủ đạo các căn hộ đều lấy cảm hừng “Chạm tay vào Nắng và Gió” kết hợp tinh tế với thiên nhiên, mang thiên nhiên vào từng căn hộ nhưng vẫn giữ được sự sang trọng và đẳng cấp.
• Với phương châm “Xây nhà cho khách phải giống như xây nhà cho mình”, Chủ đầu tư Nhà ở xã hội CT5 - CT6 Thịnh Liệt đã rất chú trọng lựa chọn đối tác tư vấn thiết kế, nhà thầu thi công và đơn vị giám sát uy tín hàng đầu. Ngoài ra, vật liệu sử dụng cho công trình cũng đều được kiểm định nghiêm ngặt, đảm bảo sự tiện dụng và tối tân nhất, mang đến không gian sống chất lượng cho cư dân.

• Mặt bằng Chung cư CT5 - CT6 Thịnh Liệt được thiết kế với xu hướng thời đại. Với mục tiêu mang đến cho khách hàng không gian sống mới lạ, mang phong cách riêng biệt. Nhưng vẫn đáp ứng đầy đủ nhu cầu sinh hoạt cho người dân. Điều đặc biệt trong thiết kế toàn bộ dự án luôn quan tâm đến phong thuỷ. Do phong thuỷ ảnh hưởng rất nhiều đến sức khoẻ cũng như tài vận của gia đình

• Thiết kế căn hộ CT5 - CT6 Thịnh Liệt rộng rãi, tận dụng tối đa ánh sáng thiên nhiên. Cách sắp xếp và bố trí nội thất cũng mang vẻ ấm cúng nhưng không kém sang trọng. Vì thế, nó không chỉ mang đến cảm giác thoải mái thư giãn cho cư dân ở đây mà còn tiết kiệm chi phí tiền điện hàng tháng rất đáng kể.
Thông tin chỉ mang tính chất tham khảo, hiện tại chưa có thông tin chính thức từ CĐT
QUÝ KHÁCH CÓ NHU CẦU XIN VUI LÒNG ĐỂ LẠI THÔNG TIN
TIN TỨC MỚI CẬP NHẬT
DỰ ÁN NỔI BẬT
Dự án cùng khu vực
Chat Zalo