Chung cư New House Xa La
Email : sotaychungcu@gmail.com
Hotline : 0964633626
Chi tiết dự án
Nhận ký gửi Bán & cho thuê Chung cư New House Xa La
Hotline: 0914.788.345
***********

• Tên dự án: Chung cư New House Xa La
• Vị trí: KĐT Xa La, Phường Phúc La, Q. Hà Đông, TP. Hà Nội
• Chủ đầu tư: Liên doanh
- Công ty Cổ phần thương mại Ngôi nhà mới (thuộc Tập Đoàn Lã Vọng)
- Công ty TNHH Một thành viên đầu tư phát triển thủy lợi Sông Nhuệ
• Tổng diện tích đất dự án: 11.391,4 m2
• Diện tích xây dựng chung cư: 6.428,5m2
• Diện tích xây dựng: 967.74m2
• Quy mô: 21 tầng và 1 tầng hầm,
- Tầng 1 là chỗ để xe với diện tích 1.878m2
- Tầng 2-8: Bố trí chức năng, văn phòng làm việc
- Tầng kĩ thuật phục vụ tòa nhà, dự án
- Tầng 9-19: Bố trí căn hộ để ở
- Tầng tum: Bố trí chức năng phục vụ tòa nhà và dự án
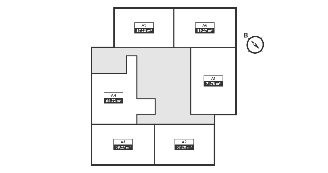
• Diện tích căn hộ: từ 59.27m2 đến 81.6m2
• Hình thức sở hữu: Sổ hồng vĩnh viễn

• Newhouse Xa La thuộc tổng thể khu đô thị Xa La, Phường Phúc La, Q. Hà Đông, TP. Hà Nội. New House Xa La được thừa hưởng những tiện tích trong khu đô thị như công viên cây xanh, trung tâm thương mại, bể bơi, sân tennis…

• Phía Tây Bắc tiếp giáp với đường Phúc La – Văn Phú. Đường rộng 42m, vỉa hè 6m, đất lưu không 35 m, là nơi thuận tiện giao thông, kinh doanh buôn bán sầm uất. Từ đây các cư dân có thể đi theo rất nhiều tuyến đường về các quận Nội thành như: Thanh Xuân, Cầu Giấy, Đống Đa, chỉ từ 5 đến 10 phút đi xe.

• Ngoài ra dự án còn được thừa hưởng tiện ích của tổng thể Khu đô thị mới Xa La và các khu lân cận: Cách các trường Đại Học lớn như ĐH An Ninh, Đại học Kiến Trúc, Học viện Bưu chính Viễn thông khoảng 1,5 km; Đại Học Hà Nội, Đại học Khoa học Xã hội và nhân vân, Đại học Khoa học Tự nhiên – Đại học Quốc gia Hà Nội khoảng 3 Km; Cách Bênh viện 103, Viện Bỏng: 300m; Cách hồ Văn Quán: 400m; Cách bưu điện Hà Đông: 600m; Cách Royal City: 4 km;

• Dự án nằm trong khu đô thị mới Xa la toàn bộ 500M mặt đường to, rộng, đẹp nhất, đường 42 m, trục chính của khu đô thị xa la Hà Đông. ĐỐI DIỆN KHÁCH SẠN MƯỜNG THANH

• Với phương châm đem đến cho khách hàng một cuộc sống thoải mái và tiện nghi, các nhà làm Dự án Newhouse Xa La không những chú trọng đặc biệt đến thiết kế các căn hộ cho phù hợp với phong thủy mà còn đem đến cho các khách hàng của mình một cuộc sống đầy đủ ngay chính tại nơi đây mà không phải đi bất cứ đâu như: mua sắm, giải trí, chăm sóc sức khỏe, làm đẹp, tập luyện thể thao... Các tiện ích ngay tại dự án giúp bạn tiết kiệm nhiều thời gian, công sức và tiền bạc sẽ nâng tầm cuộc sống cho bạn.

• Toàn bộ căn hộ tại Chung cư Newhouse Xa La Hà Đông được thiết kế với thiết kế ưu việt để đáp ứng toàn bộ nhu cầu nghỉ ngơi tươi mát của khách hàng, đảm báo đưa đến 100% lượng không khí tươi ráo vào trong từng căn hộ của bạn. Đặc biệt hơn nữa là cách bố trí hệ thống bế sát với lô gia để tạo ra sự thông thoáng cho bếp và căn hộ của gia chủ.

• Tại Chung cư Newhouse Xa La, cư dân sẽ được hưởng một cuộc sống tiện nghi và thuận tiện với hệ thống an toàn, hệ thống thang máy chở người và hàng hóa riêng biệt nhằm đảm bảo lưu lượng di chuyển của cư dân vào giờ cao điểm, hệ thống an ninh đồng bộ, camera giám sát 24/24, máy phát điện dự phòng khởi động sau 15 giây khi xảy ra sự cố, tầng hầm để xe rộng rãi đáp ứng nhu cầu đi lại của cho cư dân

• Với những thiết kế hiện đại, áp dụng các tiêu chuẩn kiểu mẫu cho những căn hộ tại Chung cư Newhouse Xa La người mua nhà có thể hoàn toàn yên tâm về không gian sống, việc vận dụng các yếu tố phong thuỷ vào trong từng thiết kế với chủ đạo các căn hộ đều lấy cảm hừng “Chạm tay vào Nắng và Gió” kết hợp tinh tế với thiên nhiên, mang thiên nhiên vào từng căn hộ nhưng vẫn giữ được sự sang trọng và đẳng cấp.
• Với thông điệp muốn truyền tải “Nơi ươm mầm cho khát vọng thành công”, do đó, chủ đầu tư đã có những tính toán khoa học và hợp lý về thiết kế, tiện ích đều hướng tới mục đích làm khơi gợi cảm hướng sống, sáng tạo mỗi ngày. Các căn hộ Newhouse Xa La cũng được chú trọng về phong thủy, với thiết kế các căn hộ từ 2-3 phòng ngủ và tối đa các phòng đều có ánh sáng tự nhiên tạo nên không gian thoáng mát và tràn đầy sinh khí, tạo nền tảng cho cuộc sống thịnh vượng của cư dân.

• Chung cư Newhouse Xa La được chủ đầu tư định vị sản phẩm thuộc phân khúc cao cấp với những căn hộ diện tích lớn. Các căn hộ được bố trí từ 2 – 3 phòng ngủ, phù hợp cả với các gia đình nhiều thế hệ. Tất cả các khu vực chức năng có những mảng tường kính an toàn lớn thay cho những bức tường bê tông bí bách, đón nắng, gió và ánh sáng tự nhiên vào căn hộ, mở ra tầm nhìn thoáng rộng.






• Các căn hộ Newhouse Xa La đều được thiết kế với nhiều mặt thoáng, có tầm nhìn rộng mở và được hoàn thiện với những trang thiết bị hiện đại, sang trọng. Hệ thống nhà thông minh cũng được lắp đặt trong tất cả các căn hộ của dự án nhằm mang tới sự tiện nghi nhất cho gia chủ.
LIÊN HỆ TƯ VẤN VÀ ĐẶT LỊCH XEM DỰ ÁN
HOTLINE: 0914.788.345
************
TIN TỨC MỚI CẬP NHẬT
DỰ ÁN NỔI BẬT
Dự án cùng khu vực
Chat Zalo