Chung cư Discovery Complex
Email : sotaychungcu@gmail.com
Hotline : 0964633626
Chi tiết dự án
Nhận ký gửi Bán & cho thuê Chung cư Discovery Complex
Hotline: 0914.788.345
***********

• Tên dự án: Chung cư Discovery Complex
• Vị trí dự án: Số 302 Cầu Giấy, Q. Cầu Giấy, TP. Hà Nội
• Chủ đầu Tư: Công ty cổ phần Thương Mại Dịch Vụ Cầu Giấy (thuộc Tập Đoàn Kinh Đô TCI Group)
• Tổng diện tích: 10.218m2
• Mật độ xây dựng: 40%
• Quy mô:
- Tháp chung cư: 54 tầng
- Tháp văn phòng: 43 tầng
• Chiều cao công trình: 195m
• Số tầng hầm: 05 tầng
• Số tầng trung tâm thương mại: 08 tầng
• Số tầng cây xanh: 04 tầng
• Số tầng căn hộ: 38 tầng
• Số tầng penthouse: 2 tầng
• Số căn hộ: 500 căn
• Hình thức sở hữu: Sổ hồng vĩnh viễn

• Discovery Complex tọa lạc tại 302 Cầu Giấy, tiếp giáp với phố Trần Đăng Ninh và phố Chùa Hà, nằm trong vị trí trung tâm của tam giác công viên Yên Hòa, Nghĩa Tân và Thủ Lệ, Discovery Complex sở hữu vị trí đẹp nhất khu vực trung tâm quận Cầu Giấy. Tuyến đường sắt trên không đầu tiên tại Việt Nam kết nối trực tiếp ga số 7 từ nhiều điểm khác nhau trong thành phố đến thẳng tầng 2 trung tâm thương mại của tòa nhà.

• Dự án Discovery Complex – 302 Cầu Giấy sẽ trở thành biểu tượng mới của quận Cầu Giấy vào quý IV năm 2014. Với 25 876 m2 sàn Trung tâm thương mại, 93 320 m2 sàn Văn phòng, trên quy mô diện tích đất 10 158.5 m2, dự án Tổ hợp Trung tâm thương mại – Căn hộ cao cấp – Văn phòng cho thuê tại 302 Cầu Giấy là dự án cao nhất và quy mô nhất quận Cầu Giấy tính tới thời điểm hiện tại.

• Tổ hợp gồm 8 tầng Trung tâm thương mại, 45 tầng căn hộ cao cấp, 36 tầng văn phòng cho thuê cùng với các tầng cây xanh và dịch vụ tiện ích như: Bể bơi trong nhà & ngoài trời, Spa & Massage, Trung tâm thể thao, chăm sóc sức khỏe,… Discovery Complex là địa điểm, nơi sống lý tưởng cho những cư dân năng động, thành đạt.

• Hiện đại, sang trọng nhưng thân thiện với môi trường là tôn chỉ phát triển dự án Discovery Complexcủa chủ đầu tư Kinh Đô TCI Group. Toàn bộ các hệ thông trong tòa nhà đều được chủ đầu tư đặc biệt chú trọng trong khâu thiết kế nhằm bảo vệ môi trường tự nhiên và cả môi trường sống cho cư dân của dự án. Thiết kế cảnh quan thông minh, tinh tế luôn đảm bảo nguồn gió và ánh sáng tự nhiên đến từng căn hộ. Bể bơi nhân tạo rộng hơn 400m2 được thiết kế nằm chính giữa hai khối tháp như một hồ điều hòa thu nhỏ, có tác dụng “giảm nhiệt” mang lại không gian sống thoáng đãng và bầu không khí trong lành.

• Thấu hiểu được giá trị vô hạn của không gian xanh trong cuộc sống hiện đại, nhà phát triển dự án đã quyết định dành trọn diện tích bốn tầng để kiến tạo nên những khu vườn đích thực. Đi theo xu hướng kiến trúc phát triển bền vững với môi trường, lối thiết kế giao hòa tự nhiên với cảnh quan củaDiscovery Complex không chỉ tạo nên sự hài hòa trong kiến trúc, mà còn mang lại môi trường sống xanh hoàn hảo cho chủ nhân tương lai.

• Bên cạnh các yếu tố “xanh”, các cư dân còn được tận hưởng hệ thống tiện ích hoàn hảo. Với 8 tầng đế làm trung tâm thương mại và 5 tầng hầm để xe, dự án cung cấp hơn 1200 chỗ đỗ ô tô và gần 4000 chỗ để xe máy, đảm bảo đáp ứng tuyệt đối nhu cầu của các gia đình tương lai. Bên cạnh đó, các tiện ích đạt chuẩn chất lượng cao như bể bơi, phòng tập thể thao đa năng, spa, trường mẫu giáo … cũng góp phần xây dựng Discovery Complex thành một quần thể khép kín với đầy đủ tiện nghi cho một cuộc sống văn minh và chất lượng.

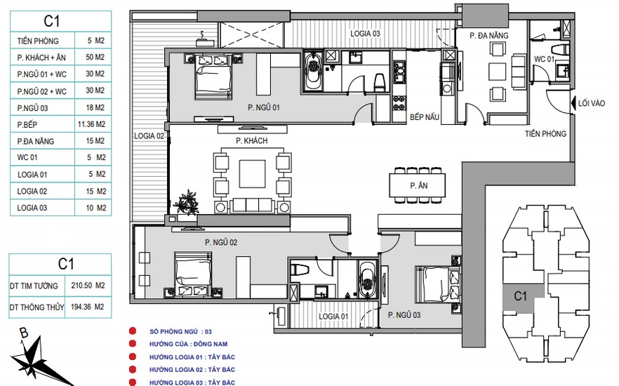
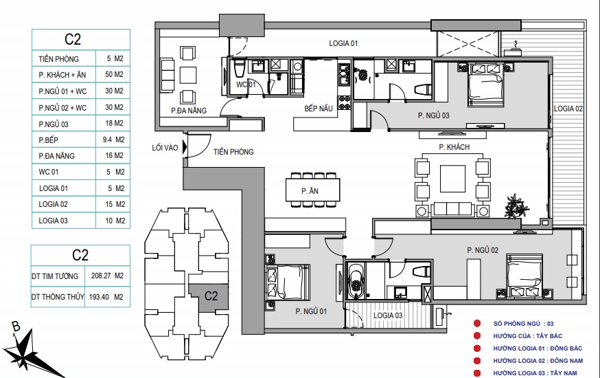
• Chung cư cao cấp Discovery Cầu Giấy gồm có 38 tầng căn hộ và 2 tầng penthouse với 500 căn hộ. Mỗi mặt sàn có từ 12 đến 14 căn hộ với 10 thang máy tốc độ nhanh + 3 tháng bộ + 2 thang máy cứu hỏa. Như vậy thiết kế về phương tiện đi lại của Discovery Complex theo chiều dọc và cả chiều ngang đều đáp ứng các tiêu chuẩn cao cấp. Mặt bằng Discovery Complex được thiết kế với nhiều diện tích 87 – 95 – 97 – 133 – 143 – 185m2 và đều có từ 2 đến 4 phòng ngủ. Đặc biệt các căn hộ đều có từ 2 đến 4 ban công với hai mặt thoáng, do vậy tạo cho căn hộ chung cư Discovery Complex không gian sống đẳng cấp và khác biệt.

• Chung cư được thiết kế thân thiện với môi trường, tạo nên tổ ấm xanh cho cư dân nơi đây. Không gian sống của căn hộ cao cấp Discovery với nội thất cao cấp và tinh tế sẽ tạo nên cuộc sống hoàn hảo cho gia đình bạn. Mỗi ngày với Discovery là nơi để bạn thỏa sức “Khám phá đỉnh cao cuộc sống” và tận hưởng niềm vui trọn vẹn mỗi ngày.
• Với phương châm kiến tạo nên một “không gian sống lý tưởng” cho mỗi cư dân, Chủ đầu tư đã lựa chọn nhà thầu xây dựng là nhà thầu uy tín nhất trên thị trường bất động sản hiện nay để thi công dự án, đồng thời cùng với nhà thầu tư vấn giám sát rất khắt khe trong công tác giám sát, kiểm định chất lượng thi công Dự án Discovery Complex. Do đó, khi trực tiếp tham quan dự án, khách hàng có thể cảm nhận được sự chỉnh chu trong từng đường phào chỉ, điện, nước hay chất lượng bê tông, sơn bả,…



• Đúng như chia sẻ của chủ đầu tư, khu căn hộ Discovery Complex được thiết kế rất thông minh, giúp tối ưu hóa diện tích cũng như công năng sử dụng của mỗi phòng. Hệ thống logia, vách kính, cửa sổ được bố trí một cách khoa học giúp cả căn hộ luôn thông thoáng, ngập tràn ánh sáng và gần gũi với thiên nhiên.














• Thêm vào đó, Chủ đầu tư Dự án Discovery Complex cũng lựa chọn nội thất hoàn thiện căn hộ đến từ các thương hiệu nổi tiếng như sàn gỗ nhập khẩu Thái Lan, cửa gỗ Kingwood, thiết bị điện Panasonic, thiết bị vệ sinh ToTo… nhằm đảm bảo chất lượng cũng như sự bền đẹp theo thời gian của căn hộ.
LIÊN HỆ TƯ VẤN VÀ ĐẶT LỊCH XEM DỰ ÁN
HOTLINE: 0914.788.345
***********
TIN TỨC MỚI CẬP NHẬT
DỰ ÁN NỔI BẬT
Dự án cùng khu vực
Chat Zalo