Chung cư Phú Gia Residence
Email : sotaychungcu@gmail.com
Hotline : 0964633626
Chi tiết dự án
Nhận ký gửi Bán & cho thuê Chung cư Phú Gia Residence
Hotline: 0914.788.345
**********

• Tên dự án: Chung cư Phú Gia Residence
• Vị trí dự án: Số 3 Nguyễn Huy Tưởng, quận Thanh Xuân, TP Hà Nội
• Chủ đầu tư: Liên doanh
- Công ty CP đầu tư phát triển Hợp Phú
- Công ty TNHH một thành viên Thuốc lá Thăng Long
• Tổng diện tích khu đất: 2129,7 m2;
• Diện tích đất xây dựng công trình: 1118 m2;
• Mật độ xây dựng: 53,9%;
• Chiều cao xây dựng: 19 tầng nổi + 02 tầng hầm;
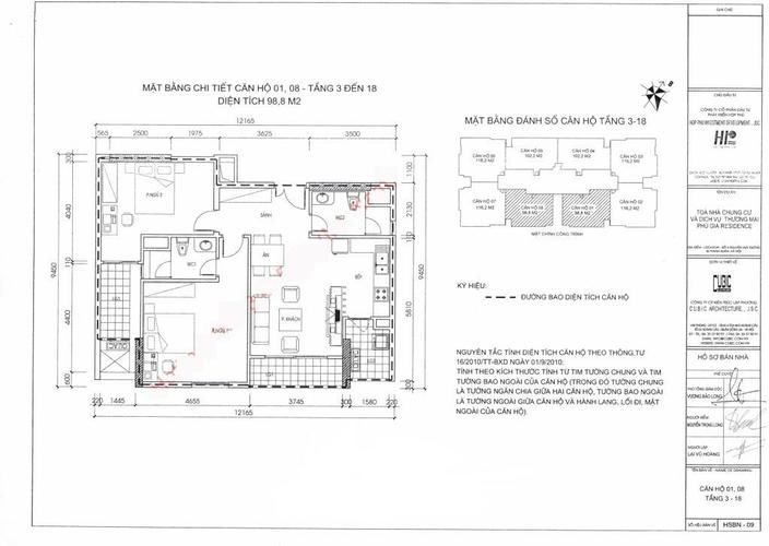
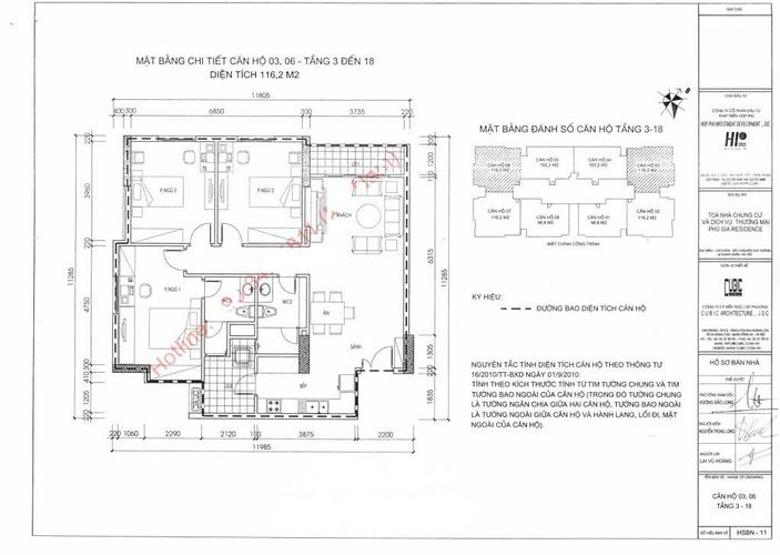
• Từ tầng 2 đến tầng 18 được thiết kế thành 136 căn hộ
• Tầng 19 được thiết kế, 4 penthouse (biệt thự trong chung cư)
• Hình thức sở hữu: Sổ hồng vĩnh viễn

• Tọa lạc tại số 3 Nguyễn Huy Tưởng, quận Thanh Xuân, TP Hà Nội Phú Gia Residence có vị trí thuận lợi để đến: Trung tâm Hội nghị Quốc Gia, Siêu thị BigC, khu vui chơi giải trí Bảo Sơn, sân vận động Quốc Gia Mỹ Đình,..

• Nằm trong khu vực có hạ tầng cơ sở đồng bộ và hoàn chỉnh của khu vực Quận Thanh Xuân, Dự án Phú Gia Residence được thừa hưởng hạ tầng chung của cả khu vực bao gồm các trung tâm đạo tạo, giáo dục lớn, các trường Đại học lớn của thủ đô như: Đại học Hà Nội, Đại học Kiến Trúc, ĐH KHXH và Nhân Văn, ĐH An Ninh, ĐH SP Nghệ Thuật trung ương, Đại Học Khoa Học Tự nhiên, HV Công Nghệ Bưu Chính Viễn Thông,… Bên cạnh đó, toàn bộ hệ thống các trường tiểu học, trung học, phổ thông như: Trường Mầm non Họa My, trường tiểu học QT Bredon, Trường Cở Sở Phan Đình Giót, Trường Phổ Thông Nhân Chính, Trường trung cấp Achimedes, trường PT chuyên Amsterdam … cũng rất gần vị trí của tòa nhà. Vì vậy, cư dân hoàn toàn yên tâm về vấn đề giáo dục và vui chơi cho con em.

• Bên cạnh đó, tòa nhà còn Gần các bệnh viện: Bệnh viện xây dựng, Bệnh viện Y cổ truyền (198 – BCA), Bệnh Viện Y Học Tuệ Tĩnh (Đường Nguyễn Trãi), Bệnh viện 103 (Hà Đông), Bệnh Viện Đa Khoa Hà Đông, … Gần viện y học hàng không, và các tòa nhà chung cư lớn: Royal City Nguyễn Trãi, Tòa nhà KeangNam … Đồng thời nằm ngay tổ hợp các tòa nhà lớn như: Tòa nhà Hapulico Center Building Vũ trọng phụng, Tòa nhà Mandarin Garden, Imperia Garden Hà Nội, Royal City Nguyễn Trãi …

• Chung cư Phú Gia Residence không chỉ được hưởng một tiện ích khu vực hiện đại và chất lượng cao, bản thân tòa nhà còn được bố trí một không gian sống và làm việc hết sức tiện nghi và hoàn hảo, tòa nhà có đầy đủ các hạng mục tiện ích cho cư dân sống tại đây bao gồm: - Trung tâm thương mại – Dịch vụ, - Phòng tập Gym, - Phòng sinh hoạt cộng đồng; - Trường học, Nhà trẻ; - Khuôn viên cây xanh, khu vui chơi, giải trí dành cho trẻ em. ...

• Với phương châm đem đến cho khách hàng một cuộc sống thoải mái và tiện nghi, các nhà làm Dự án Phú Gia Residence không những chú trọng đặc biệt đến thiết kế các căn hộ cho phù hợp với phong thủy mà còn đem đến cho các khách hàng của mình một cuộc sống đầy đủ ngay chính tại nơi đây mà không phải đi bất cứ đâu như: mua sắm, giải trí, chăm sóc sức khỏe, làm đẹp, tập luyện thể thao... Các tiện ích ngay tại dự án giúp bạn tiết kiệm nhiều thời gian, công sức và tiền bạc sẽ nâng tầm cuộc sống cho bạn.

• Toàn bộ căn hộ tại Chung cư số 3 Nguyễn Huy Tưởng được thiết kế với thiết kế ưu việt để đáp ứng toàn bộ nhu cầu nghỉ ngơi tươi mát của khách hàng, đảm báo đưa đến 100% lượng không khí tươi ráo vào trong từng căn hộ của bạn. Đặc biệt hơn nữa là cách bố trí hệ thống bế sát với lô gia để tạo ra sự thông thoáng cho bếp và căn hộ của gia chủ.

• Tại Chung cư Phú Gia Residence Nguyễn Huy Tưởng, cư dân sẽ được hưởng một cuộc sống tiện nghi và thuận tiện với hệ thống an toàn, hệ thống thang máy chở người và hàng hóa riêng biệt nhằm đảm bảo lưu lượng di chuyển của cư dân vào giờ cao điểm, hệ thống an ninh đồng bộ, camera giám sát 24/24, máy phát điện dự phòng khởi động sau 15 giây khi xảy ra sự cố, tầng hầm để xe rộng rãi đáp ứng nhu cầu đi lại của cho cư dân

• Với những thiết kế hiện đại, áp dụng các tiêu chuẩn kiểu mẫu cho những căn hộ tại Chung cư Phú Gia Residence người mua nhà có thể hoàn toàn yên tâm về không gian sống, việc vận dụng các yếu tố phong thuỷ vào trong từng thiết kế với chủ đạo các căn hộ đều lấy cảm hừng “Chạm tay vào Nắng và Gió” kết hợp tinh tế với thiên nhiên, mang thiên nhiên vào từng căn hộ nhưng vẫn giữ được sự sang trọng và đẳng cấp.
• Với phương châm “Xây nhà cho khách phải giống như xây nhà cho mình”, Chủ đầu tư Dự án Phú Gia Residence đã rất chú trọng lựa chọn đối tác tư vấn thiết kế, nhà thầu thi công và đơn vị giám sát uy tín hàng đầu. Ngoài ra, vật liệu sử dụng cho công trình cũng đều được kiểm định nghiêm ngặt, đảm bảo sự tiện dụng và tối tân nhất, mang đến không gian sống chất lượng cho cư dân.

• Mỗi chi tiết nội thất đều toát lên vẻ thanh lịch, sang trọng đúng chất, để gia chủ có thể trải nghiệm đẳng cấp sống đỉnh cao trong từng centimet. Hơn thế, toàn bộ quang cảnh thành phố sôi động sẽ tràn vào nhà qua tầm nhìn paronama không giới hạn, cả thủ đô hoa lệ đều được thu trọn vào tầm mắt của chủ nhân



• Phú Gia Residence là dự án nổi bật với những ưu thế về vị trí, thiết kế, tiện ích dành cho cư dân và một không gian sống xanh, trong lành, gần gũi với thiên nhiên. Không chỉ yên tâm về chất lượng công trình cũng như không gian sống lý tưởng, khách hàng chọn mua căn hộ tại Chung cư Phú Gia Residence còn được hưởng giá bán và những chính sách ưu đãi vô cùng hấp dẫn.
LIÊN HỆ TƯ VẤN & ĐẶT LỊCH XEM DỰ ÁN
HOTLINE: 0914.788.345
***********
TIN TỨC MỚI CẬP NHẬT
DỰ ÁN NỔI BẬT
Dự án cùng khu vực
Chat Zalo