Chung cư Officetel The Lotus Center giá gốc Chủ đầu tư

Chung cư The Lotus Center

  Email : sotaychungcu@gmail.com

  Hotline : 0964633626

Chi tiết dự án

CHUNG CƯ THE LOTUS CENTER

LIÊN HỆ TƯ VẤN VÀ ĐẶT LỊCH XEM DỰ ÁN
HOTLINE: 0914.788.345
************

TỔNG QUAN DỰ ÁN THE LOTUS CENTER

• Tên dự án: The Lotus Center
• Vị trí: Ô đất TM01, Khu đô thị Ciputra – Nam Thăng Long, Q. Tây Hồ, TP Hà Nội
• Chủ đầu tư: Tập đoàn Vimefulland
• Đơn vị thiết kế: NKB Archi
• Đơn vị thi công: Ecoba Việt Nam
• Đơn vị quản lý: Savills Việt Nam
• Loại hình phát triển: Căn hộ cao cấp, Officetel, Liền kề, biệt thự
• Tổng diện tích ô đất: 19,704.5m2
• Diện tích xây dựng: 7,861.1
• Diện tích sàn xây dựng: 315,244m2
• Diện tích đỗ xe yêu cầu: 67,057.2m2
• Diện tích đỗ xe đạt được: 69,981.0m2
• Mật độ xây dựng: 40%
• Quy mô tòa nhà Officetel – dự án The Lotus Center
- Gồm 2 tòa với 4 đơn nguyên, 5 tầng hầm, 40 tầng nổi
- Tầng 1-2: Shophouse 
- Tầng 3-4-5: Văn phòng Vimedimex 
- Tầng 6-40: Căn hộ
• Tổng số căn: 3395 căn  (97 căn/ sàn, 4 cụm thang máy, mỗi cụm 6 thang)
• Thiết kế căn hộ:
- Loại 1 phòng ngủ: Diện tích 45 – 46 – 47 – 49  m2
- Loại 2 phòng ngủ: Diện tích  61 – 66 –  69 – 75 – 112 m2
• Hình thức sở hữu: 50 năm 

VỊ TRÍ & TIỆN ÍCH DỰ ÁN THE LOTUS CENTER

• The Lotus Center nằm trên đường Võ Chí Công, thuộc khu đô thị Ciputra, phường Phú Thượng, quận Tây Hồ, Hà Nội. Đây có thể coi là con đường đẹp nhất tại thành phố Hà Nội với chiều rộng 60m, thông thoáng, lưu thông dễ dàng. Đặc biệt, đây là con đường nối sân bay Nội Bài với trung tâm Hà Nội một cách nhanh nhất. Dự án sở hữu một vị trí vô cùng thuận tiện về mặt giao thông, có thể di chuyển đến trung tâm thành phố và các quận xung quanh dễ dàng.

• Nằm ngay trong khu đô thị Ciputra, dự án The Lotus Center Vimefulland sở hữu vị trí đắc địa hiếm có và vô cùng thuận tiện trong kết nối giao thông. Từ dự án cư dân có thể dễ dàng di chuyển tới khu trung tâm thành phố cũng như các vùng phụ cận nhanh chóng thông qua trục được huyết mạch Võ Chí Công, Nguyễn Văn Huyên kéo dài, Phạm Văn Đồng, cầu Nhật Tân, cầu Thăng Long…
- 5 PHÚT đi bộ tới Hồ Tây
- 10 PHÚT tới TT văn hóa & giải trí của người nước ngoài
- 15 PHÚT tới Hồ Hoàn Kiếm
- 15 PHÚT tới sân bay quốc tế Nội Bài

• Nằm ngay tại nơi được coi là “mảnh đất vàng” của thành phố với phong thủy hanh thông “tụ thủy sinh khí” mang tới những may mắn và thịnh vượng cho gia chủ. Bởi vậy theo góc nhìn của các chuyên gia BĐS thì đây là vị trí lý tưởng để an cư và làm việc cũng như đầu tư kinh doanh, mang tới tiền tài cho chủ sở hữu. Dễ dàng kết nối tiện ích vùng phụ cận:
- Bệnh viện lớn: Bệnh viện E, BV Thu Cúc, BV Tim Hà Nội …
- Trường học: Trường Quốc tế LHQ ( UNIS), Trường Xuân Đỉnh, Trường Song Ngữ Hà Nội Academy, Đại học quốc gia…
- TTTM – Khu vui chơi – giải trí: Siêu thị Metro, CV nước Hồ Tây, CV Hòa Bình …

• Bên cạnh đó, The Lotus Center nằm trong quần thể khu đô thị Ciputra Nam Thăng Long với hạ tầng kỹ thuận và xã hội đầy đủ hoàn thiện. Do vậy, cư dân The Lotus Center sẽ được tận hưởng các tiện ích đẳng cấp và dịch vụ hoàn hảo tạo nên cuộc sống năng động và hiện đại.

• The Lotus Center Tây Hồ đảm bảo mọi cư dân đều được tận hưởng tiện ích khép kín nội khu một cách thuận tiện nhất, The Lotus Center bố trí 3 khu tiện ích khép kín ngoài trời với 1 khu đặt tại Green Center Villas và 2 khu tại Golden Center Lake tích hợp đầy đủ bể bơi, sân thể thao ngoài trời, sân chơi trẻ em với sân cát sáng tạo và hệ thống trò chơi vận động liên hoàn, quảng trường phun nước sạch cho các cư dân nhí thỏa thích vui đùa mỗi buổi chiều… Đặc biệt, tất cả các tiện ích tại The Lotus Center chỉ phục vụ riêng cư dân với chất lượng dịch vụ cao nhất, chú trọng tới sự riêng tư, an toàn và thoải mái.

• Vimedimex thấu hiểu để duy trì chất lượng dài lâu cho The Lotus Center, cần có một Tổng chỉ huy chuyên nghiệp Savills quản lý tòa nhà, bảo trì hệ thống hạ tầng kỹ thuật, chăm sóc những hàng cây, những thảm cỏ, cũng như đảm bảo an ninh, an toàn cho cư dân và Savills Việt Nam tiếp tục được lựa chọn làm đơn vị quản lý hạ tầng, dịch vụ cho The Lotus Center, đảm bảo cư dân nơi đây sẽ luôn có một đội ngũ tận tụy chăm lo cho không gian sống của cư dân theo tiêu chuẩn mà Vimedimex đã định vị.

• Officetel The Lotus Center nằm trong quần thể khu đô thị Ciputra Nam Thăng Long với hạ tầng kỹ thuận và xã hội đầy đủ hoàn thiện. Do vậy, cư dân The Lotus Center sẽ được tận hưởng các tiện ích đẳng cấp và dịch vụ hoàn hảo tạo nên cuộc sống năng động và hiện đại.

• Tại The Lotus Center Ciputra, các cư dân có thể yên tâm sống trong một môi trường không tiếng ồn, không khói bụi, không lo âu bởi đây là dự án tiên phong ứng dụng tiêu chuẩn chăm sóc sức khỏe cho cư dân với tiêu chuẩn về nguồn nước sạch, tiêu chuẩn về phát triển sức khỏe thể chất, tiêu chuẩn về phát triển sức khỏe tinh thần và tiêu chuẩn về ô nhiễm môi trường.

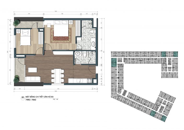
MẶT BẰNG DỰ ÁN THE LOTUS CENTER

• Officetel The Lotus Center là một mô hình hiện đại “hai trong một”, vừa có không gian làm việc vừa là nơi nghỉ ngơi sang trọng, tiện nghi khi chủ nhân có thể sử dụng tất cả tiện ích của một khu căn hộ cao cấp như hồ bơi, khu dịch vụ – giải trí tổng hợp, nhà hàng, khu mua sắm, chăm sóc sức khỏe… Với các tiện ích văn phòng đạt tiêu chuẩn 5 sao và đồng bộ như: lối vào riêng, sảnh lễ tân, hệ thống thang máy thông minh dành riêng cho khách văn phòng…, Officetel The Lotus Center đảm bảo tính an toàn và đẳng cấp của một khu văn phòng hạng A với hệ thống kiểm soát an ninh, thẻ từ nhận diện và hệ thống quản lý tòa nhà chuyên nghiệp.

• Mang đặc trưng của mô hình Officetel “hai trong một”, căn hộ đa năng The Lotus Center Ciputra vừa có không gian làm việc hiện đại và tiện nghi, vừa là nơi nghỉ ngơi sang trọng, thuận tiện nhất. Mỗi căn hộ được thiết kế thông minh tối ưu công năng sử dụng, cho dù để ở hay làm việc thì chủ sở hữu đều nhận được những giá trị vượt trội.

• Đặc biệt tại đây chủ nhân Officetel The Lotus Center Vimefulland có thể sử dụng tất cả tiện ích của một khu căn hộ cao cấp cùng với đó những tiện ích văn phòng đạt tiêu chuẩn văn phòng hạng A như: lối vào riêng biệt, sảnh lễ tân tiếp đón, hệ thống thang máy thông minh cho khu văn phòng… đáp ứng mọi nhu cầu sinh sống và làm việc của gia chủ.

LIÊN HỆ TƯ VẤN VÀ ĐẶT LỊCH XEM DỰ ÁN
HOTLINE: 0914.788.345
************

Tải trọn bộ tài liệu dự án Chung cư The Lotus Center

  • File mặt bằng chất lượng cao
  • Bảng giá cập nhật mới nhất
  • Chính sách ưu đãi trực tiếp từ CĐT
  • Đăng ký nhận lịch mở bán
  • Đăng ký tham quan căn hộ mẫu
Copyright: 2015 Sổ tay Chung cư. All Rights Reserved
Chat Zalo